Sobrado com 3 dormitórios à venda,96.00 m , CONVENTOS, LAJEADO - RS
Ref.: 1721
R$ 380.000,00
Compartilhe

Descrição

Sobrado de esquina com 3 dormitórios e excelente pátio – Bairro Conventos
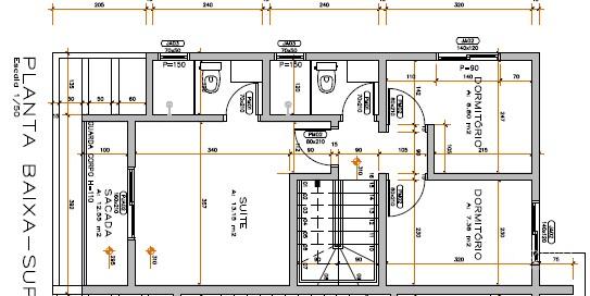
Encante-se com este sobrado de esquina, com 96m² e ambientes bem distribuídos! São 3 dormitórios, sendo 1 suíte com sacada, lavabo no térreo, cozinha e área de serviço integradas, além de churrasqueira para os momentos de lazer. O imóvel conta ainda com 2 vagas de garagem e um amplo pátio lateral e nos fundos com 67m², ideal para quem valoriza espaço ao ar livre.
Previsão de entrega com documentação Dez/2025.
Perfeito para morar com conforto e praticidade!

Entre em contato e agende sua visita!

Cômodos

1 Sala(s)
1 Cozinha(s)
2 Banheiro(s)
1 Lavabo(s)
3 Quarto(s)
Sacada(s)
2 Garagem Descoberta
Área Serviço

Características

Churrasqueira
Varanda
Murado

Dimensões

96,00m² (m²) Área Total

Localização

CONVENTOS / LAJEADO RS
Quero entrar em contato pelo Whatsapp
Quero entrar em contato pelo Whatsapp

Imóveis Similares