Sobrado com 2 dormitorios à venda,77.00 m , CONVENTOS, LAJEADO - RS
Ref.: 2048
R$ 330.000,00
Compartilhe

Descrição

Excelente oportunidade de sobrado, ideal para quem busca conforto, praticidade e um ótimo padrão de acabamento!
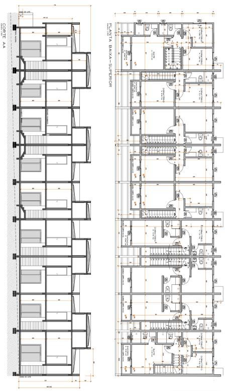
O imóvel conta com 77m² de área construída, distribuídos de forma inteligente. São 2 suítes no pavimento superior, garantindo mais privacidade, além de lavabo no piso inferior.
A área social é integrada e dispõe de churrasqueira, perfeita para momentos de lazer com família e amigos. Nos fundos, o sobrado possui um amplo pátio com 36m², ideal para quem deseja espaço externo.
Conta ainda com 2 vagas de veículos, trazendo mais comodidade no dia a dia.
O imóvel apresenta ótimos acabamentos, com telhado em aluzinco, porta externa em alumínio, portas internas em laca branca e janelas em vidro temperado de 8mm com alumínio. O piso é retificado, garantindo um visual moderno e elegante.
Uma excelente opção para morar bem, com conforto e funcionalidade. Entre em contato para mais informações!

Cômodos

1 Sala(s)
1 Cozinha(s)
1 Banheiro(s)
1 Lavabo(s)
2 Quarto(s)
1 Sacada(s)
2 Garagem Descoberta
Área Serviço

Características

Churrasqueira
Varanda
Espaço Gourmet

Dimensões

77,00m² (m²) Área Total
36,00m (m) Fundos

Localização

CONVENTOS / LAJEADO RS106, 107 e 108
Quero entrar em contato pelo Whatsapp
Quero entrar em contato pelo Whatsapp

Imóveis Similares