Casa com 2 dormitórios à venda,52.80 m , São Bento, LAJEADO - RS
Ref.: 1753
R$ 335.000,00
Compartilhe

Descrição

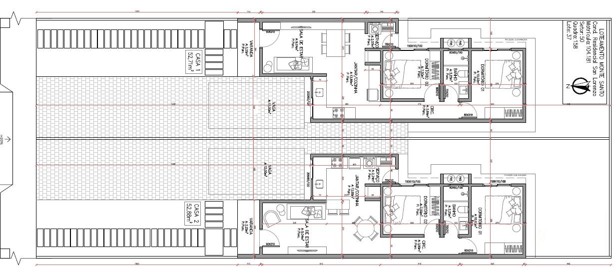
Residencial San Lorenzo –são duas casas geminadas com 52,80m² cada

- Localização privilegiada no Bairro São Bento, Lajeado/RS;
- Terreno: 6,5 x 30m, pátio nos fundos, dormitórios com orientação solar norte;

Imóvel:
52,80m² de área privativa;
2 dormitórios;
Pátio fundos;
Sala e cozinha integradas;
Banheiro social;
Churrasqueira interna;
2 vagas de garagem;
passagem lateral para os fundos;
Diferenciais: Porcelanato, esquadrias em alumínio, nicho no box, esperas para ar-condicionado e aquecimento a gás.

Previsão de entrega: Dez/2026

Cômodos

1 Sala(s)
1 Cozinha(s)
1 Banheiro(s)
2 Quarto(s)
2 Garagem Descoberta
Área Serviço

Características

Churrasqueira
Varanda
Murado
Porcelanato Piso

Dimensões

52,80m² (m²) Área Total

Localização

São Bento / LAJEADO RSCasa 01 e 02
Quero entrar em contato pelo Whatsapp
Quero entrar em contato pelo Whatsapp

Imóveis Similares