Casa com 2 dormitórios à venda,55.31 m , Olarias, LAJEADO - RS
Ref.: 1781
R$ 375.000,00
Compartilhe

Descrição

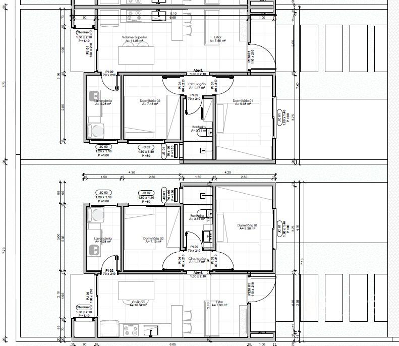
Descubra o Condomínio Residencial Ilmo Kuffel, um projeto exclusivo com apenas 10 casas unifamiliares, pensado para quem busca conforto, privacidade e valorização.

Cada unidade conta com:
2 dormitórios aconchegantes e iluminados;
Banheiro moderno e funcional;
Sala e cozinha integradas, perfeitas para conviver em família e receber amigos;
Lavanderia prática e discreta;
Pátio frente e fundos, ideal para jardim, lazer ou área gourmet;
Garagem com pergolado, unindo praticidade e elegância;
Área construída entre 55 e 60 m², aproveitada em cada detalhe.

Um refúgio particular que une exclusividade, bem-estar e excelente potencial de investimento.

Cômodos

1 Sala(s)
1 Cozinha(s)
1 Banheiro(s)
2 Quarto(s)
1 Garagem Descoberta
Área Serviço

Características

Churrasqueira
Varanda

Dimensões

55,31m² (m²) Área Total

Localização

Olarias / LAJEADO RS
Quero entrar em contato pelo Whatsapp
Quero entrar em contato pelo Whatsapp

Imóveis Similares