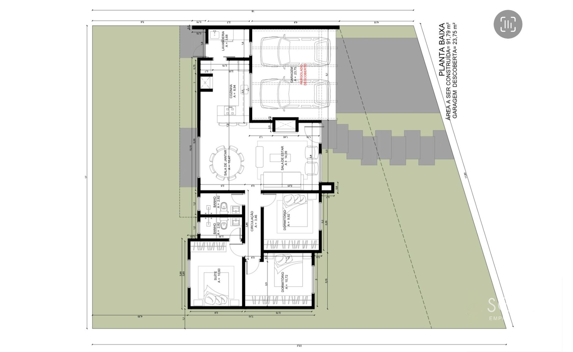
Casa com 3 dormitórios à venda,91.79 m , CONVENTOS, LAJEADO - RS
Ref.: 1754
R$ 583.000,00
Compartilhe

Descrição

Casa individual com 91,79 m² + 23,75 m² garagem descoberta, composta por:
- 3 dormitórios sendo 1 suíte;
- Sala de estar;
- Sala de jantar;
- Churrasqueira (interna);
- Cozinha;
- Lavanderia (interna);
- 1 banheiro social;
- 02 vaga de garagem lado a lado;
- Pé direito alto;
- Amplo pátio;
- Espera para água quente;
- Esperas de ar condicionado;
- Esperas de Gás;
- Pergolado (sem cobertura);

Acabamentos: Porcelanato nas áreas sociais e laminado nas áreas íntimas, esquadrias externas de alumínio e internas de madeira branca.
Previsão de entrega: Outubro/2026

Cômodos

1 Sala(s)
1 Cozinha(s)
2 Banheiro(s)
3 Quarto(s)
2 Garagem Descoberta
Área Serviço

Características

Churrasqueira
Varanda
Lareira

Dimensões

91,79m² (m²) Área Total
348,00m² (m²) Área do Terreno

Localização

CONVENTOS / LAJEADO RS
Quero entrar em contato pelo Whatsapp
Quero entrar em contato pelo Whatsapp

Imóveis Similares