Casa com 3 dormitórios à venda,65.00 m , CONVENTOS, LAJEADO - RS
Ref.: 1952
R$ 299.000,00
Compartilhe

Descrição

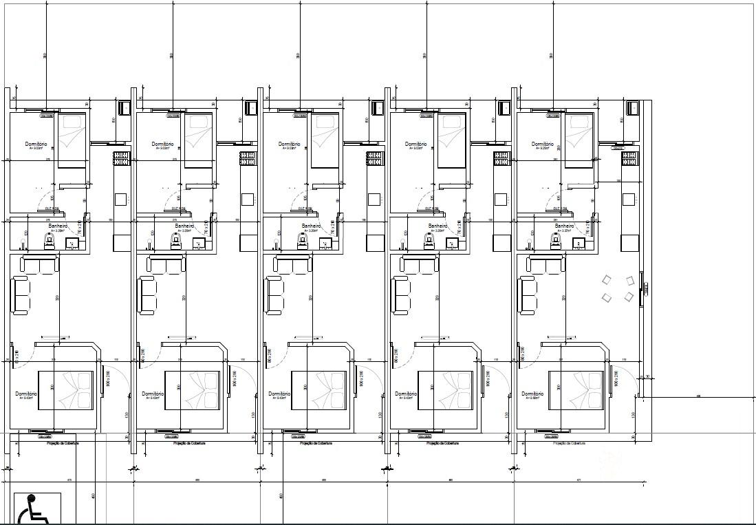
Casa geminada de esquina com entrega prevista para Abril/2026!
Com 65m², conta com 3 dormitórios, vaga para 1 carro, aberturas em alumínio e vidro, piso cerâmico e pátio nos fundos — ideal para área de lazer ou jardim. Ótima opção para quem busca conforto e praticidade em um espaço bem planejado.

Cômodos

1 Sala(s)
1 Cozinha(s)
1 Banheiro(s)
3 Quarto(s)
1 Garagem Descoberta
Área Serviço

Características

Churrasqueira
Varanda
Murado

Dimensões

65,00m² (m²) Área Total

Localização

CONVENTOS / LAJEADO RSunidade 1
Quero entrar em contato pelo Whatsapp
Quero entrar em contato pelo Whatsapp

Imóveis Similares